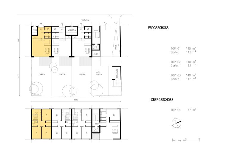
Project 251
- Project Number
- 251
- Status
- Buildings
- Planner
- Georg W. Reinberg, Beate Lubitz-Prohaska, Lucie Weissová
- Client
- Park Immobilien GmbH, Wien
- Planning start
- Mai 2008- Aug. 2010, Sep. 2011- Apr. 2012
- Construction start
- Mai 2012
- Project completion
- Aug. 2013






























