Städtebau:
Das Projekt bildet den Kopfbau einer geschlossenen Bebauung an der Ostseite. Gleichzeitig ist der Bau Endpunkt einer Häuserzeile. Dementsprechend ist der Bau würfelförmig ausgebildet und zur Grünfläche in Richtung Süden mit größeren Fenstern geöffnet.
Der Bau erhält eine möglichst ruhige rechteckige Form, um zwischen der Dynamik der Straßenkreuzung, der Grünfläche im Süden und den geschlossenen Baukörpern zu vermitteln und diese unterschiedlichen Bereiche klar abzuschließen. In diesem Sinne wird auch der bestehende Knick, der sich aus der Baufluchtlinie ergibt, in den Obergeschoßen begradigt.
Die Dach- und Balkonflächen nutzen die attraktiven Ausblicke in den südlichen Grünbereich.
Architektur:
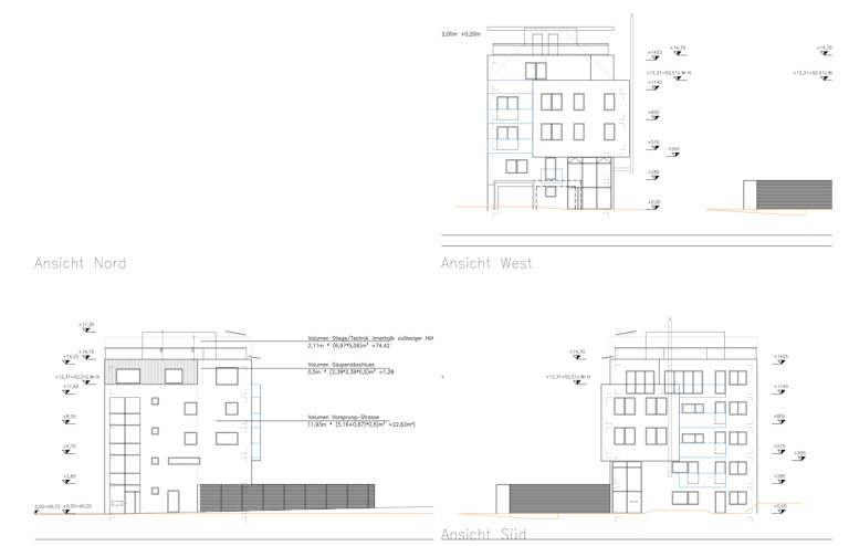
Der kubische Baukörper bleibt zur Arbesbachgasse relativ geschlossen (kleine Fensteröffnungen, Dominanz der verputzten Flächen). Nur im Dachgeschoß werden größere Fenster ausgeführt. Das Stiegenhaus ist durch ein vertikales Fensterband klar ablesbar. Das Sockelgeschoß zur Straße hin farblich abgesetzt.
Die Fassade zur Straße wird im Dachgeschoß zum Garten hin mit einer – die Fassade hochziehenden – Gaupe abgeschlossen, um so diesem ‚besonderen Punkt’ (Städtebau) zu entsprechen.
Die Süd- und Ostfassade erhalten einen gemeinsamen Erker, der sich in Form von verputzten – der Erkeroberfläche entsprechenden – Geländern über die Fassade ausdehnt. Süd- und Ostfassade besitzen große Fenster.
Energiekonzept:
Das Gebäude wird in Passivhausqualität ausgeführt. Den Restenergiebedarf deckt ein Pelletskessel (22kW). Die Wohnungen sind mit einer zentralen Lüftungsanlage mit Wärmerückgewinnung ausgestattet.





















